Residencial Lux Pilar
Localización: C/ Buitrago de Lozoya, 14 c/v C/ La Cabrera, 17. Madrid.
Superficie construida: 4.200 m².
Fecha: 2017.
Promotor: LEVEL.
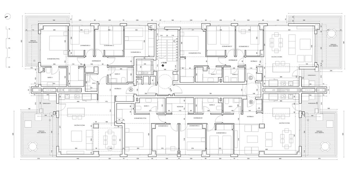
Proyecto de 21 viviendas plurifamiliares, con jardín, piscina, sala comunitaria garaje y trasteros .
Arquitectura limpia que acentúa la horizontalidad y el movimiento mediante el contraste ente las bandas blancas de prefabricados de hormigón y la dislocación de distintas terrazas, que toman protagonismo en los hastiales.
Flexibilidad de distribuciones y programas diferenciados en las distintas plantas.
Especial énfasis en las zonas comunes en planta baja, sala comunitaria espacios de relax bajo los soportales se abren al jardín comunitario y la piscina.

