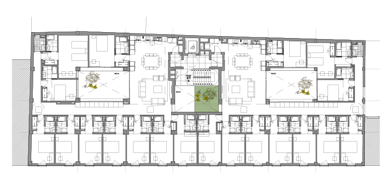
Anastasio Herrero
Localización: C/ Anastasio Herrero 9, Madrid.
Superficie construida: 2.970 m².
Fecha: 2021-2025.
Promotor: DAZIA CAPITAL.
Proyecto de 79 plazas de coliving con piscina y local comunitario.
Localización: C/ Anastasio Herrero 9, Madrid.
Superficie construida: 2.970 m².
Fecha: 2021-2025.
Promotor: DAZIA CAPITAL.
Proyecto de 79 plazas de coliving con piscina y local comunitario.